Hệ thống đầu đốt lò hơi đóng vai trò quan trọng trong ngành công nghiệp, đảm bảo cung cấp nhiệt lượng ổn định và hiệu quả cho quá trình sản xuất. Vậy đầu đốt lò hơi là gì? Hãy cùng Kim Trường Phúc tìm hiểu chi tiết về khái niệm, phân loại và nguyên lý hoạt động của thiết bị này.
>>> XEM NGAY: Lò hơi tầng sôi là gì? Cấu tạo và nguyên lý hoạt động
1. Đầu đốt lò hơi là gì?
Đầu đốt lò hơi là một bộ phận quan trọng trong hệ thống lò hơi, chịu trách nhiệm đốt cháy nhiên liệu để tạo ra nhiệt năng. Nhiệt năng này sau đó được chuyển hóa thành hơi nước hoặc khí nóng để phục vụ cho các nhu cầu sản xuất, vận hành trong các ngành công nghiệp.
Chức năng chính của đầu đốt lò hơi đó là:
- Tạo ngọn lửa: Đầu đốt phối hợp giữa nhiên liệu và không khí, tạo ra một ngọn lửa ổn định.
- Cung cấp nhiệt năng: Ngọn lửa sinh nhiệt, cung cấp năng lượng cho hệ thống lò hơi.
- Tiết kiệm nhiên liệu: Một đầu đốt hiện đại tối ưu hóa tỷ lệ đốt cháy, giảm thiểu thất thoát năng lượng và hạn chế khí thải độc hại.

Đầu đốt lò hơi chuyển hóa nhiên liệu thành năng lượng nhiệt để làm nóng nước và sinh hơi
(Nguồn ảnh: Sưu tầm)
2. Phân loại đầu đốt lò hơi
Tùy thuộc vào loại nhiên liệu sử dụng, đầu đốt lò hơi được chia thành các loại phổ biến sau:
2.1. Đầu đốt nhiên liệu khí
Đầu đốt nhiên liệu khí là loại đầu đốt sử dụng nhiên liệu dạng khí như:
- Khí tự nhiên (Natural Gas).
- Khí hóa lỏng (LPG).
Ưu điểm:
- Hiệu suất cháy cao, đảm bảo cung cấp nhiệt lượng tối ưu.
- Thân thiện với môi trường, giảm phát thải khí độc hại.
- Dễ dàng kiểm soát quá trình đốt thông qua các hệ thống tự động.
Ứng dụng:
- Ngành thực phẩm: Chế biến, sấy khô sản phẩm.
- Ngành dệt may: Cung cấp hơi trong quy trình xử lý vải.
2.2. Đầu đốt nhiên liệu lỏng
Loại đầu đốt này sử dụng các nhiên liệu như:
- Dầu diesel.
- Dầu FO (Fuel Oil).
Ưu điểm:
- Phù hợp với lò hơi công suất lớn, hoạt động liên tục.
- Có khả năng cung cấp nhiệt lượng cao trong thời gian ngắn.
Ứng dụng:
- Ngành sản xuất điện: Cung cấp hơi cho tua-bin.
- Ngành hóa chất: Phục vụ các quy trình hóa học yêu cầu nhiệt độ cao.
- Sử dụng lò hơi ống nước, lò hơi ống lửa.
2.3. Đầu đốt đa nhiên liệu
Đây là loại đầu đốt linh hoạt, có thể sử dụng cả nhiên liệu lỏng và khí.
Ưu điểm:
- Tiết kiệm chi phí vận hành, đặc biệt khi giá nhiên liệu biến động.
- Thích hợp cho các nhà máy công nghiệp lớn yêu cầu chuyển đổi nhanh chóng giữa các loại nhiên liệu.
Ứng dụng:
- Các nhà máy chế biến có nhu cầu đa dạng hóa nguồn cung cấp năng lượng.
Lưu ý: Việc lựa chọn loại đầu đốt phù hợp không chỉ giúp tăng hiệu suất mà còn đảm bảo tính ổn định và tiết kiệm chi phí cho hệ thống lò hơi.
Đầu đốt lắp cùng lò hơi ống lửa (Nguồn ảnh: Sưu tầm)
3. Nguyên lý hoạt động của đầu đốt lò hơi
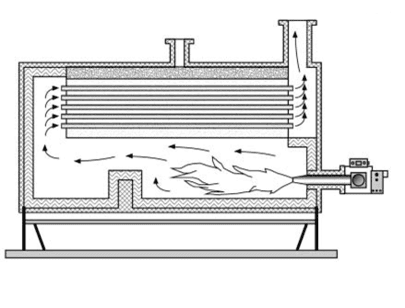
Hiện nay đầu đốt dầu DO (đầu đốt dầu diesel) được sử dụng phổ biến trong nhiều nhà máy lớn tại Việt Nam nhờ hiệu suất cao, nguồn nhiên liệu ổn định và dễ bảo trì.
Lò hơi đốt dầu diesel hoạt động dựa trên quá trình đốt cháy nhiên liệu dầu DO trong đầu đốt để tạo ra nhiệt lượng, làm nóng nước và sinh hơi. Nguyên lý hoạt động của đầu đốt dầu diesel dựa trên quá trình phun nhiên liệu dầu DO vào buồng đốt, kết hợp với không khí để tạo hỗn hợp cháy. Dầu diesel được bơm từ bồn chứa qua hệ thống cấp nhiên liệu áp suất cao đến đầu phun.
Tại đây, nhiên liệu được phun tơi thành các hạt mịn, giúp tăng diện tích tiếp xúc với không khí. Quạt gió trong đầu đốt cung cấp lượng không khí cần thiết và trộn đều với nhiên liệu. Khi hỗn hợp đạt tỷ lệ tối ưu, hệ thống đánh lửa (bugi hoặc tia lửa điện) kích hoạt quá trình cháy, tạo ra nhiệt lượng lớn.
Nhiệt lượng này được truyền vào lò hơi để làm nóng nước, sinh hơi áp suất cao phục vụ các nhu cầu công nghiệp. Đầu đốt dầu diesel thường được trang bị hệ thống điều khiển tự động để đảm bảo tỷ lệ cháy hiệu quả, tiết kiệm nhiên liệu và giảm thiểu khí thải.

Dầu diesel được bơm từ thùng chứa qua hệ thống cấp nhiên liệu và dẫn đến vòi đốt (Nguồn ảnh: Sưu tầm)
Đầu đốt lò hơi là thiết bị không thể thiếu trong các hệ thống lò hơi công nghiệp, góp phần quan trọng trong việc tối ưu hóa năng lượng và giảm thiểu tác động môi trường. Việc lựa chọn, lắp đặt và vận hành đúng cách không chỉ giúp bạn tiết kiệm chi phí mà còn nâng cao hiệu quả sản xuất. Hãy liên hệ ngay với Kim Trường Phúc để được tư vấn chi tiết về sản phẩm và nhận giải pháp phù hợp nhất nhé!
THÔNG TIN LIÊN HỆ
Công ty TNHH Kim Trường Phúc
- Trụ sở chính: D11A, khu phố 4, phường Tân Hiệp, Thành phố Biên Hòa, tỉnh Đồng Nai.
- Nhà máy chế tạo lò hơi: Ấp 1, KCN Thạnh Phú, Huyện Vĩnh Cửu, T.P Biên Hòa, tỉnh Đồng Nai.
- Email: sales@kimtruongphuc.vn
- Hotline: 0982 131 131
- Website: https://kimtruongphuc.vn/
26/12/2025
